APPARTAMENTO AMPIA METRATURA

200.000 €
174 m²
Superficie
7
Locali
3
Camere
2
Bagni
1
Box
in vendita
appartamento
Amelia
Descrizione
Nelle immediate vicinanze dell'antico borgo, a circa un'ora da Roma, proponiamo in vendita un moderno appartamento sviluppato su due livelli, situato in una zona tranquilla e riservata, comodamente accessibile.

L'ingresso avviene mediante un ampio spazio multifunzione (70mq circa), pensato in origine come portico, e attualmente trasformato dal proprietario in una loggia.

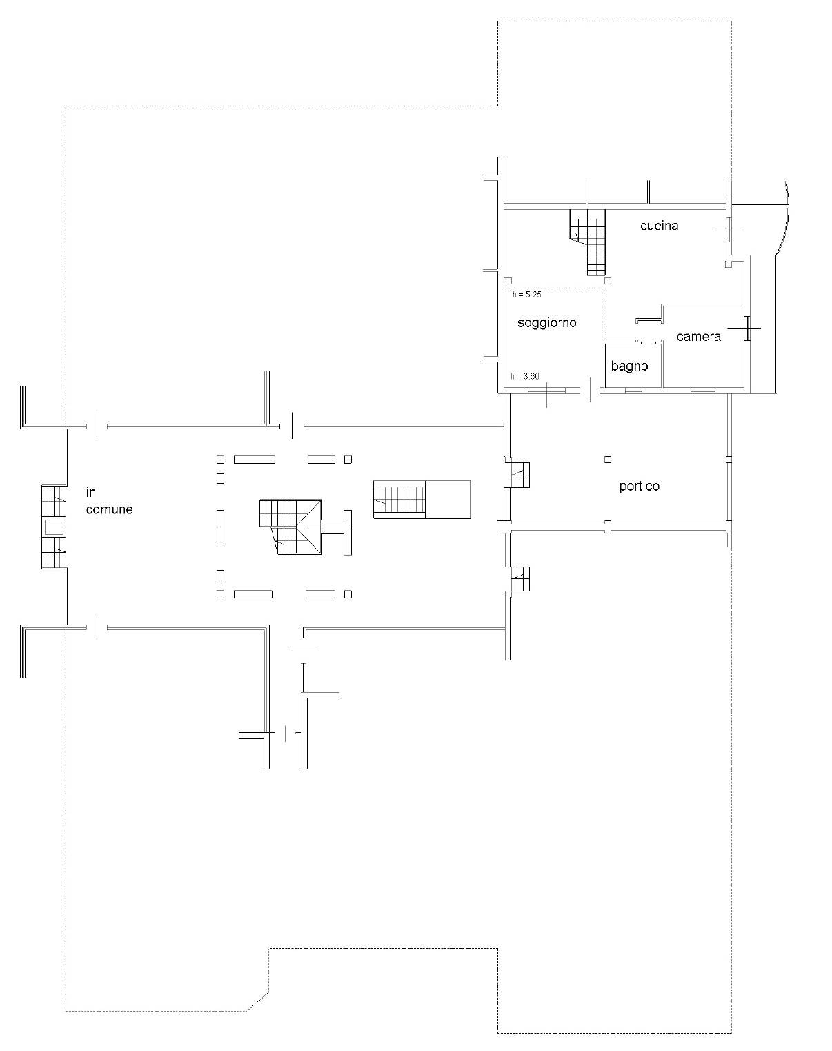
PIANO TERRA
Ampio e luminoso soggiorno, con zona relax e cucina abitabile, dotata di termocamino, forno a legna, porta finestra su terrazzo esposto ad Est, bagno e camera matrimoniale.

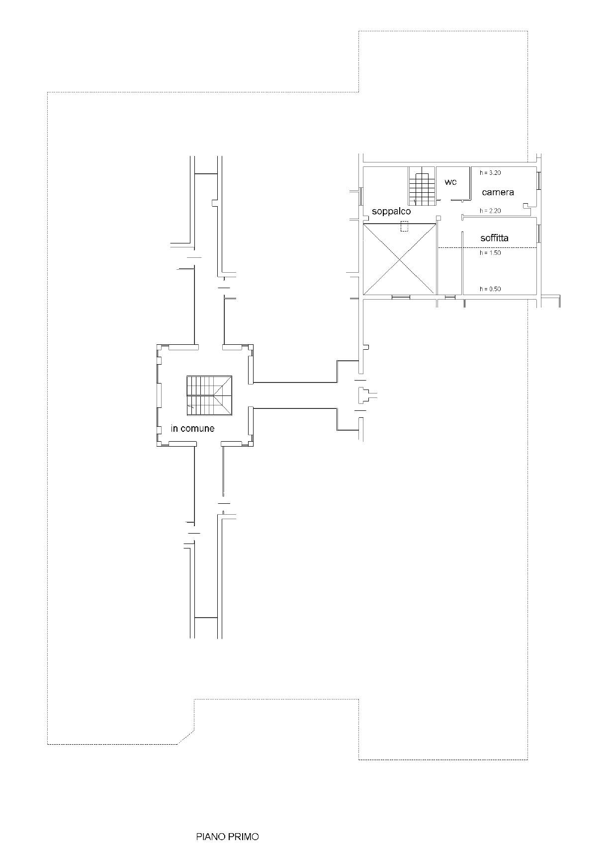
PIANO PRIMO
Soppalco affacciato sulla zona giorno, con accesso a 2 camere, studio mansardato, bagno e ripostiglio.

PERTINENZE
Completano la proprietà un garage di ampia metratura al piano seminterrato, e posti auto esterni.

RISCALDAMENTO E ALTRE INFORMAZIONI
L'appartamento, oltre ad un'efficientissimo termo-camino, che garantisce un ottimo riscaldamento dell'intera casa, possiede un Impianto Fotovoltaico di 4 KW.

L'appartamento è inserito in un condominio di 14 unità.



Caratteristiche principali
Codice:
GL0010
Città:
Amelia
Categoria:
Appartamento
Locali:
7
Camere:
3
Bagni:
2
Mq:
174
Box:
1
Mq Box:
29
Posti auto:
1
Terrazzi:
1
mq Terrazzo:
13
Anno:
2002
Anno ristrutturazione:
2011
Classe energetica:
In fase di valutazione
Stato Immobile:
Ristrutturato
Grado:
Signorile
Posizione:
Centro
Panorama:
Vista Aperta
Orientamento:
Nord Ovest Sud Est
Lati Liberi:
1
Giardino:
No
Arredi:
Possibilità
Tipo Soggiorno:
Salone
Tipo Cucina:
Abitabile
Riscaldamento:
Autonomo
Tipo Riscaldam.:
Termocamino
Tipo Impianto:
Radiatori
Fonte Energetica:
Metano
Acqua Calda:
Autonoma
Infissi:
Legno Doppio Vetro
Serramenti:
Buono
Persiana:
Persiana Legno
Accessori
Camino
Canna fumaria
Doppi Vetri
Pannelli Solari
Passaggio Automobilistico
Passaggio Pedonale
Porta Blindata
Rete Dati
Ripostiglio
Distanze
Posizione
Centro1 km
Parco pubblico1 km
Istruzione
Scuola materna1 km
Scuola elementare1 km
Scuola media1 km
Scuola superiore1 km
Mezzi di trasporto
Fermata metro-bus-tram1 km
Stazione dei treni15 km
Altri servizi
Farmacia700 m
Ospedale1,5 km
Supermercato500 m
Richiedi informazioni
Cookie preference